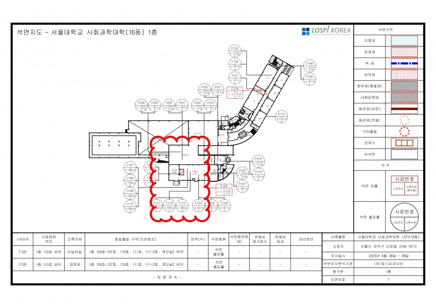
서울대학교 16동 석면철거문제에 대한 대학원생들의 기자회견문
센터소개
인사말
센터연혁
조직도
주요사업영역
창립선언문
찾아오는길
정보마당
성명서 및 보도자료
환경보건시민센터 활동 언론보도
환경보건시민센터 보고서 모음
2026년
2025년
2024년
2023년
2022년
2021년
2020년
2019년
2018년
2017년
2016년
2015년
2014년
2013년
2012년
2011년
2010이전
오피니언
환경과건강 만화방/책방/영화방/도표
도표모음
김현아작가
정상래작가
이성진작가
계대욱작가
책방
영화방
현장소식 포토리포트
2026년
2025년
2024년
2023년
2022년
2021년
2020년
2019년
2018
2017
2016
2015
2014
2013
2012
2011
2010
Hot Issue
Hot issue
가습기살균제피해
초미세먼지(PM2.5)대기오염
핵ㆍ방사능 안전-라돈침대
식품안전운동
환경운동연합 바다위원회
기후변화와 시민건강
유해물질추방운동
환경오염과 발암물질
유해물질&상품 추방운동
한국석면추방네트워크
전자파공해
간접흡연공해
어린이환경보건
어린이환경보건
학교 환경보건문제
환경호르몬
공해피해자지원운동
시멘트산업공해피해
환경피해자지원운동
환경피해시민대회
기업감시운동
환경보건과 생태계
아시아환경보건운동
아시아환경보건운동
아시아석면추방네트워크
아시아산재/공해피해자대회
아시아공해지도
커뮤니티
공지사항
자유게시판
시민기자단
환경보건민원
포토갤러리
Hot issue 동영상
웹진
환경피해기록관
가습기살균제 참사기록관
목록
자료
가습기살균제 참사 주요일지
가습기살균제 피해목록
석면피해기록관
목록
자료
석면피해 주요일지
석면 피해목록
ENGLISH
Asian Citizen's Center for Environment and Health
센터소개
인사말
센터연혁
조직도
주요사업영역
창립선언문
찾아오는길
정보마당
성명서 및 보도자료
환경보건시민센터 활동 언론보도
환경보건시민센터 보고서 모음
오피니언
환경과건강 만화방/책방/영화방/도표
현장소식 포토리포트
Hot Issue
Hot issue
가습기살균제피해
초미세먼지(PM2.5)대기오염
핵ㆍ방사능 안전-라돈침대
식품안전운동
환경운동연합 바다위원회
기후변화와 시민건강
유해물질추방운동
환경오염과 발암물질
유해물질&상품 추방운동
한국석면추방네트워크
전자파공해
간접흡연공해
어린이환경보건
어린이환경보건
학교 환경보건문제
환경호르몬
공해피해자지원운동
시멘트산업공해피해
환경피해자지원운동
환경피해시민대회
기업감시운동
환경보건과 생태계
아시아환경보건운동
아시아환경보건운동
아시아석면추방네트워크
아시아산재/공해피해자대회
아시아공해지도
커뮤니티
공지사항
자유게시판
시민기자단
환경보건민원
포토갤러리
Hot issue 동영상
웹진
환경피해기록관
가습기살균제 참사기록관
가습기살균제 참사 주요일지
가습기살균제 피해목록
석면피해기록관
석면피해 주요일지
석면 피해목록
ENGLISH
Asian Citizen's Center for Environment and Health
메인
센터소개
정보마당
Hot Issue
유해물질추방운동
어린이환경보건
공해피해자지원운동
아시아환경보건운동
커뮤니티
환경피해기록관
ENGLISH
0
환경오염과 발암물질
유해물질&상품 추방운동
한국석면추방네트워크
전자파공해
간접흡연공해
한국석면추방네트워크
홈 > 유해물질추방운동 > 한국석면추방네트워크
한국석면추방네트워크
서울대학교 16동 석면철거문제에 대한 대학원생들의 기자회견문
관리자
0
4693
2023.07.17 23:38
0
Comments
로그인한 회원만 댓글 등록이 가능합니다.
이전
다음
목록
유해물질추방운동
환경오염과 발암물질
유해물질&상품 추방운동
한국석면추방네트워크
전자파공해
간접흡연공해
+
최신글
01.02
[현대건강신문] 기후위기, 2025년 ‘올해의 환경뉴스’ 1위
01.02
[현대건강신문] 산소통 끌고 선 피해자 “가습기살균제 참사 끝나지 않아 책임져라”
01.02
[2025년12월24일] 가습기살균제 피해구제법 전부개정법률안
01.02
[2026년1월12일 환경보건시민센터 포럼(1)] 정부의 가습기살균제 피해대책 점검
12.31
[경남도민일보] 가습기 살균제 피해 사회적 참사 규정 “늦었지만 진일보”
State
현재 접속자
492 명
오늘 방문자
4,331 명
어제 방문자
11,930 명
최대 방문자
27,852 명